您当前的位置:成果库 > 一种卧式垃圾破袋机
基本信息
- 成果类型 高等院校
- 委托机构 西安电子科技大学
- 成果持有方 西安电子科技大学
- 行业领域 清洁生产与循环经济
- 项目名称 一种卧式垃圾破袋机
- 知识产权 发明专利
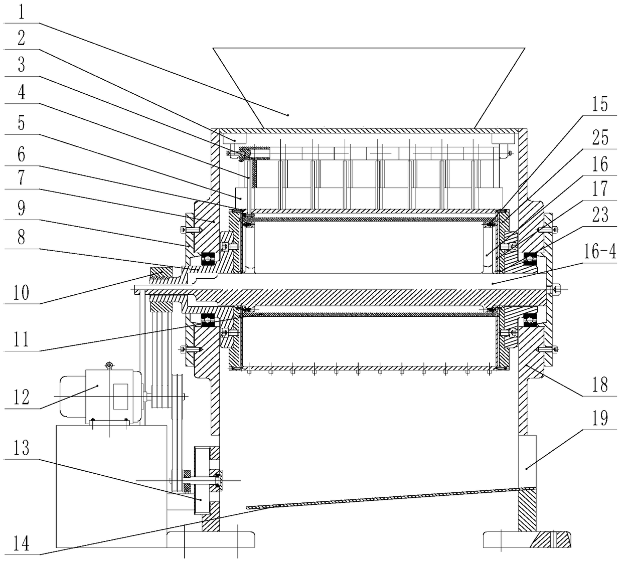
- 项目简介 本发明公开了一种卧式垃圾破袋,包括一个顶部设有下料口的封闭的箱体,在箱体上设有固定的凸轮机构和由电动机带动旋转的动刀机构和风机,箱体上还设有与动刀机构相交的定刀机构,对应其底部设有V型槽,V型槽底部设有U型排料槽;通过所述动刀机构沿凸轮机构旋转伸缩,动刀与定刀相配合,将塑料袋撕裂、破碎,落入排料槽,并通过风机在U型排料槽中将硬质物及以未粉碎的料袋与符合要求的塑料碎片分离和筛选,并将残余物自排料口排出,至此完成垃圾的破袋粉碎与硬质物分离过程。该装置能够避开硬质物、保护刀具、不粉碎硬质物及改善刀架结构、紧固刀架,其合理规划刀具布局,达到最大程度地粉碎垃圾塑料袋,分离塑料碎片与杂质,其机械结构简单、安全性能高、工作效率高。
-
交易信息
- 意向交易额 面议
- 挂牌时间 2017/12/22
- 委托机构 西安电子科技大学
- 联系人姓名 王小刚
- 联系人电话 15802954800
- 联系人邮箱 745490733@qq.com
- 分享至:


482
2018/08/25
咨询成果
发布成果